Обзор промышленных моделей
Рассмотрим некоторые популярные модели кроличьих клеток, которые можно использовать как в фермерских, так и в домашних хозяйствах.
Конструкция «Окрол»
Эта модель не слишком подходит для небольшого домашнего хозяйства, но хорошо приспособлена для промышленного разведения и откорма кроликов.
Её особенности:
«Практика FR-231»
Данная модель также довольно вместительна и чаще применяется в промышленном кролиководстве. Особенности «Практики FR-231» таковы:
- эксплуатируется в помещении;
- в ней можно откармливать молодняк или оборудовать маточники;
- конструкция двухъярусная — снизу 12 отделений, сверху шесть отделений, в них можно устанавливать дополнительные внутренние перегородки;
- крышки отделений подпружинены;
- элементы конструкции выполнены из стали и оцинкованного железа.
Система управления климатом для кролиководческой фермы
Различают две основные схемы устройства вентиляции продольная и поперечная. При продольной схеме вентиляции, в торце здания устанавливается несколько вытяжных вентиляторов или несколько групп вентиляторов(в больших зданиях), которые обеспечивают необходимый для каждого конкретного производственного помещения воздухообмен, основная задача вентиляторов отвод вредных газов из зоны обитания животных, а также помощь в поддержании требуемой температуры воздуха. При большой длине здания (более 50м), дополнительно устанавливают промежуточные вентиляторы ближе к средней части, или используют поперечную схему вентиляции равномерно распределяя все вентиляторы вдоль фасада здания. Забор свежего воздуха производится через регулируемые вентиляционные окна устанавливаемые на фасаде или кровле здания. В обоих случаях, условно можно определить, что зимой используется система отопления и вентиляции, а летом используется система охлаждения(увлажнения) и вентиляции.
Итак, мы рассмотрели основное оборудование для кролиководства, которое необходимо использовать для достижения максимальных результатов.
Авторские модели
Эти модели больше ориентированы на домашние хозяйства, а их конструкция лучше приспособлена для самостоятельного изготовления в домашних условиях. Рассмотрим некоторые удачные разработки.
Клетки по методу Золотухина
Данный тип клетки особенно популярен в домашних хозяйствах из-за несложной конструкции, дешевизны и практичности.
Видео: Золотухин Николай Иванович и клетки для кроликов
Она отличается следующими характеристиками:
Конструкция по методу Михайлова
Эта конструкция привлекательна для многих кролиководов тем, что позволяет давать корм и воду животным, а также чистить клетку один раз в несколько дней.
Видео: Михайловские клетки для содержания кроликов Её особенности:
- устанавливается на открытом воздухе, может быть одно- или двухъярусной;
- есть съёмный маточник и отсек для отсаженных крольчат;
- предусмотрена автоматическая поилка и бункерная кормушка, в которые загружают корм и воду один-два раза в неделю;
- имеется подогрев поилки в зимний период и вентиляционная вытяжка;
- есть пирамидообразный поддон с ёмкостью для сбора фекалий.
Модель Титаренко
Эта модульная конструкция может быть сравнительно компактной или собираться из нескольких модулей в мини-ферму. Функционально во многом схожа с предыдущей конструкцией.
Видео: модульная клетка для кроликов модель Титаренко Она отличается следующими характеристиками:
- эксплуатируется на открытом воздухе или в помещении;
- может быть двух- или трёхъярусной, с базовым, смежным и родильным ярусом;
- маточник может быть внутренним или навесным;
- имеется поддон с ёмкостью для сбора фекалий;
- предусмотрена автоматическая поилка с зимним подогревом и бункерная кормушка;
- есть вентиляционная труба.
Построение Цветкова
Особенности данного устройства таковы:
- эксплуатируется на открытом воздухе;
- конструкция двухъярусная, по два отделения на каждом ярусе;
- навесные маточники;
- два конических поддона с ёмкостями для сбора фекалий;
- бункерные кормушки и автоматические поилки (вода при необходимости подогревается кипятильником);
- система вентиляции.
Видео: устройство минифермы Цветкова
Модель Овдеенко
Конструкция клетки Овдеенко заметно отличается от предыдущих. В частности, можно отметить такие особенности:
- это четырёхъярусный блок по шесть ячеек для животных на каждом ярусе;
- под каждой ячейкой съёмный поддон для фекалий;
- есть кормушки и поилки;
- фронтальную часть клетки можно прикрыть общими дверцами для защиты от ветра и осадков;
- эксплуатируется на открытом воздухе.
Выбираем место
При выборе места будущего проживания животных и установки их домиков-клеток, нужно обратить внимание на некоторые параметры выбранной территории. Клетки для ушастых подопечных можно размещать:
Клетки для ушастых подопечных можно размещать:
- на улице;
- в закрытом помещении.
Существуют определенные требования к месту размещения кроличьих клеток
Разумеется, первый вариант подходит лишь тем хозяйствам, которые располагаются на территории южных регионов со стабильно теплым и мягким климатом. В противном случае, в зимнее время животные не выдержат на улице без укрытия. Если вы с кроликами планируете проживать как раз в таком благодатном месте, учитывайте следующие правила.
- Норма увлажненности воздуха, которую хорошо переносят кролики, имеет верхнюю границу в 75%. Перенести ее больший процент они не смогут физически, начнут чахнуть и болеть. Исходя из этого, выбрать место для установки клеток следует сухое, находящееся далеко от водоемов, лучше всего на возвышенности.
- Существуют рекомендации, касающиеся и солнечных лучей. Ушастые любят погреться под ними лишь в мультиках, в жизни это принесет один лишь вред и приведет к повальным заболеваниям и гибели животных. Чтобы прямые солнечные лучи не попадали на клетки, установите их в тени садовых деревьев или организуйте навесы. Если кролиководство – дело всей вашей жизни, можно насадить кустовую изгородь, которая станет рассеивать солнечные лучи, пропуская через себя.
Клетки для кроликов можно размещать как в помещении, так и на улице
Следующее продолжение списка рекомендаций актуален как для содержания кроликов в уличных условиях, так и в комнатных.
- Одна из основных задач при содержании кроликов – не допустить внутри их домиков разгула сквозняков. По статистике, именно продувания являются наиболее частой причиной, провоцирующей заболевания ушастого поголовья. Если ветряные порывы будут превышать скорость в 30 метров за 1 секунду, животным будет очень непросто сохранить здоровье.
- Однако не стоит и превращать образ жизни кроликов в тепличный. Качественная вентиляция – важнейшее условие правильного содержания животных. Если она будет недостаточной, испражнения животных, испаряясь, заразят организмы вреднейшими токсинами.
- Зимой клетки животных необходимо утеплять. Если они содержатся в отапливаемом сарае, достаточно лишь включить обогреватель. Однако, если отопления нет и стены, защищающие от холодов, также отсутствуют, обязательно утеплять сами ячейки. Температура внутри них не должна упасть ниже +10 градусов. Не желательно и превышать отметку в +20 градусов, так как эта температура уже считается слишком жаркой для пушистых.
Требования к закрытому помещению для кроликов
Содержание в холодных климатических зонах подразумевает обязательное наличие убежища – сарая или другого домика, в который устанавливаются клетки для животных. К этому помещению также представлен перечень требований, которые необходимо удовлетворить для успешного разведения пушистых.
Окна сарая следует размещать на южной или юго-восточной стороне, чтобы увеличить для животных световой день, а также поступление тепла от согревающих лучей солнца. Придется дополнительно оснастить помещение лампами и обогревателями, так как в короткие зимние световые дни кролики остро ощутят нехватку тепла и света. Можно «убить двух зайцев» и оснастить крольчатник красными лампами, дающими одновременно и свет и тепло. При небольших размерах площади крольчатника, этого будет достаточно, чтобы справиться с негативными последствиями суровых зимних морозов, характерных для климата нашей страны.
Оштукатуривание стен также обязательно, так как позволит соблюдать гигиену в помещении и предотвратит проникновение излишней влажности внутрь помещения, где содержатся ушастые.
Сами клетки внутри домика необходимо разместить так, чтобы к ним постоянно поступал воздух. Открытой частью они должны смотреть на восточную стену, так как это расположение наиболее благоприятно для хорошего самочувствия кроликов.
Обязательно следует организовать внутри своеобразные полки – подпорки, чтобы установить на них клетки. Высота таких подпорок должна составлять около метра
Эта мера предосторожности поможет избежать покусов кроликов мышами или крысами, разрушений клеток, а также поможет облегчить уход за животными и их домами.
Как сделать клетки для кроликов по методу Золотухина своими руками
Из всех вышеописанных конструкций модель Золотухина является наиболее подходящей для изготовления в домашних условиях. Для её производства не нужны серьёзный опыт и навыки, а также дорогие материалы. При всём этом модель практична и позволяет с успехом разводить кроликов.
Проектирование, чертежи с размерами
Каких-то строгих размеров данной модели не существует. Рассмотрим базовый двухъярусный вариант клетки. Под него рекомендуются следующие размеры (они могут быть скорректированы с учётом конкретных особенностей хозяйства):
- ширина — 200 см;
- высота — 150 см;
- расстояние от дверцы до задней стенки (глубина) — 80 см;
- наклон пола — 5–6 см;
- дверца — 40х40 см (или общая дверца на два яруса);
- площадь маточника — 40х40 см;
- высота дверцы маточника — 15 см;
- высота фронтальной стенки маточника — 16–17 см;
- высота задней стенки маточника — 27–28 см.
Материалы и инструменты
Для изготовления данной конструкции понадобятся следующие материалы:
- доска толщиной 18–20 мм;
- бруски деревянные 50х50 мм;
- шифер для пола и крыши (шифер для пола можно заменить доской);
- сетка металлическая для дверок и задней части пола;
- фанера для дверок маточников;
- поликарбонат для задней стенки (этот материал желателен, т. к. по нему будут стекать фекалии из верхней клетки, а он не подвержен гниению);
- жесть;
- различный крепёж.
Из инструментов нужны будут такие;
Пошаговая инструкция
Для изготовления кроличьей клетки конструкции Золотухина необходимо выполнить следующие действия:
Видео: клетка для кроликов от Золотухина — своими руками
В процессе изготовления и монтажа кормушек опрокидывающегося типа учитываются следующие моменты:
- передняя часть, дно и наклонная задняя часть формируются из досок, длина которых соответствует размерам дверцы ячейки;
- боковые части изготавливаются из той же доски, им придают трапециевидную форму;
- внутренняя часть кормушки обивается жестью;
- кормушка монтируется на дверцу, для монтажа вбиваются в дверцу гвозди через высверленные в боковинах кормушки отверстия;
- кормушка должна быть перегорожена металлической сеткой, не доходящей до её дна.
Читать так же: Можно ли давать крапиву кроликам?
Как видим, имеется немало конструкций кроличьих клеток, пригодных как для фермерского хозяйства, так и для частного подворья. Эти уже опробованные модели клеток выгодно отличаются от различного рода импровизаций продуманностью конструкции. Некоторые модели весьма просты и пригодны для изготовления в домашних условиях даже малоквалифицированными людьми.
Удаление маточника из клетки
Точного правила, когда убирать маточник из клетки не существует. Точно это не рекомендуется делать до того времени, пока крольчата не достигли возраста в 21 день. Дальше надо смотреть по состоянию детёнышей. Они должны уже быть довольно активны, сами передвигаться, кушать. В холодную пору маточник надо оставлять в клетке подольше.
Маточник — это место, где крольчиха может с полной безопасностью укрыться и спокойно привести помет, а также это «первый домик» для новорождённых крольчат. С полной ответственностью надо подойти к его изготовлению. Но как видим, его можно довольно легко построить самостоятельно в домашних условия.
Клетки промышленного производства
Промышленные клетки для кроликов бывают как импортные, так и отечественного производства. Для того чтобы определиться с выбором, нужно знать о том, какие бывают жилища для этих животных. Виды шедов для кроликов бывают разные, например:
- для содержания на улице. Они должны быть теплыми;
- для содержания животных в помещении, например, в сарае или в гараже. Они должны хорошо вписываться в размер помещения;
- летние домики для животных с огороженной площадкой для выгула;
- так называемые «маточники», предназначенные для крольчихи и ее потомства после окрола.
Клетки для молодняка кроликов должны быть максимально просторными, так как малыши быстро растут. Если молодняк содержат в тесноте, животные будут больше болеть и хуже прибавлять в весе.
Как правило, домики промышленного производства отличаются удобством и эргономичностью, а планировка их зависит от того, на какое количество животных он рассчитан. Если поголовье небольшое, можно выбрать «дом», состоящий из нескольких «квартир», каждая из которых предназначена для одного взрослого кролика.
Взрослых кроликов удобнее всего содержат в изоляции, потому что животные часто проявляют агрессию по отношению друг к другу, особенно в период половой активности. А вот молодняк, наоборот, лучше содержать «кучно», особенно если в помещении или на улице низкая температура воздуха. Когда крольчата находятся в одной клетке, они греют друг друга и не страдают от переохлаждения.
Галерея: промышленные клетки для кроликов (25 фото)
Критерии выбора
В интернете имеются положительные отзывы животноводов от зарубежных производителей. Итальянские клетки для кроликов выполнены по новейшим технологиям и отличаются надежностью, а также использованием самым качественных материалов. Французские модели имеют много дополнительных функций (например, автоматические поилки и кормушки, сигнализацию, регулятор температуры и влажности воздуха). При выборе следует в первую очередь обращать внимание на:
От какой клетки лучше отказаться
При выборе клеток для группового содержания молодняка следует иметь в виду, что животные в раннем возрасте очень быстро растут, активно двигаются, и им нужен определенный простор. В связи с этим клетка должна быть достаточно большой по площади.
При покупке шеда следует обращать особое внимание на надежность крыши и перекрытий между ярусами (в том случае, если это модульная многоярусная конструкция).
Система автоматического поения для клеток серии «Практика»
Подача воды почти всегда происходит автоматически. Автоматическая подача воды позволяет легко делать групповые терапии. Вода в поилке всегда должна быть доступна для животных, должна быть свежая, но не холодная, оптимальная температура 15 °С. Потребление воды зависит от качества корма, температуры окружающей среды, возраста животного. Для бесперебойной подачи воды в баки на клеточных батареях, в техническом помещении каждого корпуса необходимо установить накопительный бак объемом 2 куб.м., эта вода также используется для дезинфекции помещения.
Кроме того, система позволяет выполнять подачу витаминов и лекарственных средств, дозатор монтируется непосредственно на трубопроводе и осуществляет подачу необходимых препаратов в воду.
Особенности содержания кроликов
Содержать животных в заводских клетках очень удобно. Это незаменимая вещь в большом фермерском хозяйстве. Для того чтобы кроликам было комфортно в таком жилище, следует иметь в виду следующее:
- у всех животных должен быть удобный доступ к еде и воде;
- убираться следует ежедневно, потому что неубранный помет может стать источником опасных инфекций;
- переносные клетки для кроликов весной и летом желательно выносить на свежий воздух;
- если клетка стоит в закрытом помещении (например, в гараже), это помещение необходимо периодически проветривать, так как спертый воздух негативно влияет на состояние здоровья животных. При этом нужно избегать сквозняков.
У животных в клетке ежедневно должны быть свежая вода и пища. Остатки пищи нужно своевременно убирать, так как поедание несвежего корма может привести к массовому падежу. Если клетка стоит в закрытом помещении, зимой следует включать обогреватель. При этом нужно особенно тщательно следить за влажностью воздуха, так как от большинства обогревателей воздух становится очень сухим, и животные сразу это чувствуют.
Пол в клетках рекомендуется снабжать мягкой подстилкой для того, чтобы животные чувствовали себя максимально комфортно. Для подстилки хорошо подойдет сено или трава. Не рекомендуется использовать для подстилки несъедобный материал, который животные могут по ошибке грызть или есть.
Необходимость устройства маточника
Опытные заводчики знают, что маточник для крольчихи нужен не только в холодное время года. Так как в природе кролики обитают в норках, то они могут там спокойно выкармливать приплод. В условиях же открытой клетки сделать это им будет весьма затруднительно, так как самка будет постоянно обеспокоена вниманием. Если не поместить ее с крольчатами в ту среду, которая предназначена для выполнения материнской миссии, то осуществить ее будет проблемно для животного.
К тому же, только что родившиеся крольчата не имеют шерсти, что становится проблемой не только зимой. Иммунитет новорожденных очень слабый, поэтому малейший сквозняк может привести к болезни или смерти. В клетке для кроликов с маточником же очень хорошо сохраняется тепло, что благоприятно воздействует на крольчат. После того, как потомство окрепнет, они сами вылезут в свободное пространство клетки.
Изготовление клетки своими руками
Чертежи клеток для кроликов уличного содержания можно скачать в интернете или найти в специализированной литературе по животноводству. Размеры самодельного жилища для животных зависят от численности поголовья в конкретном хозяйстве. Сделать такой шед своими руками можно из подручных материалов. Проще всего изготовить шед модульной конструкции. Эта разновидность жилья представляет собой многоярусную клетку, состоящую из отдельных модулей одинакового размера.
Опытные животноводы, знакомые с азами строительства помещений для животных, могут сделать чертежи самостоятельно. Простейшая конструкция представляет собой несколько клеток-ячеек, отделенных друг от друга вертикальными перегородками. Такая конструкция может иметь один ярус (если поголовье небольшое) или несколько ярусов.
Для того чтобы кролики могли хорошо видеть все происходящее на улице или в помещении и не страдали от недостатка освещения, лучше всего закрыть такие модули сеткой-рабицей. Ячейки должны быть достаточно мелкими, чтобы животные не могли случайно просунуть сквозь них свою лапу, и чтобы в клетку не пробрались мелкие грызуны.
Читать так же: У кроликов кровь: причины, что делать
Размещать поилку и кормушку лучше всего в углу, чтобы кроликовод случайно не опрокинул их, когда открывает клетку для осмотра животных. Если конструкция одноярусная, лучше всего сделать откидной верх. В этом случае можно будет вытаскивать кроликов из домика сверху за уши, что очень удобно. Можно проделать в крыше отверстие, напоминающее люк, а можно просто сделать крышу подвижной, оба варианта хороши.
Для летнего содержания мелких пород кроликов (в том числе, декоративных) идеально подходят деревянные домики с лесенкой и территорией, огороженной сеткой-рабицей и предназначенной для выгула животных в теплую погоду. Ступеньки не должны быть слишком крутыми и высокими, а можно обойтись и вовсе без них, снабдив домик легко открывающейся дверкой. Тогда грызун без проблем сможет выйти погулять в теплую погоду, а потом самостоятельно забраться обратно в свое жилище. Такой дом должен быть очень прочным.
Фермер, который мастерит домик для кроликов, должен твердо знать: категорически запрещается использовать асбест в качестве утеплителя и изолятора, потому что он выделяет токсичные вещества. У кроликов очень слабая и чувствительная дыхательная система, поэтому это не приведет ни к чему хорошему.
Дом для грызунов должен быть удобным и безопасным. Тогда кролики порадуют ценным мехом и легко усвояемым мясом.
Размеры клетки для калифорнийских кроликов
Калифорнийские кролики неприхотливы в уходе. Это гибрид русской горностаевой, советской шиншиллы и новозеландской породы. Размеры конструкции могут быть в 1.5 раза меньшими, чем для кроликов «серый великан». Эти кролики могут хорошо переносить холод даже без подстилки. Для клетки с маточником будет достаточно 0.4кв. м, для одной особи – 0.3кв. м. Содержать их просто. На лапах калифорнийских кроликов – жесткая шерсть. Размещая особей в сеточных блоках, селите питомцев одного возраста – так будет легче ухаживать, кормить, проводить ветеринарные осмотры.
Для разведения калифорнийских кроликов исключительно ради мяса – содержите их в яме. Обустроить яму очень легко, а проживание этих кроликов в яме будет по максимуму приближено к природным условиям их обитания.
Для устройства кроличьей ямы нужно вырыть яму приблизительными размерами 2×2х1м, шифером или бетоном укрепить стенки, настелить сетчатый или дощатый пол, забором огородить яму, сделать крышу. Калифорнийские кролики будут рыть норы, спариваться, размножаться, выращивать молодых особей.
Чтобы не было вырождения кроликов – не допускайте близкородственного спаривания. Кроликовод обязан поставлять воду, корм, периодически проводить селекционный отбор. Чтобы избежать близкородственного спаривания – первое поколение, подросшее до половой зрелости, полученное от определенного самца, нужно отловить и заменить другими кроликами.
Калифорнийские кролики хорошо кушают молочные продукты, рыбную или мясную муку, различные протеиновые добавки. Зимой у питомцев должна быть теплая жидкость для питья. Постоянный доступ к воде обязателен для кроликов.
В последние годы у фермеров очень популярно разводить калифорнийских кроликов. Эту породу нетрудно разводить на специализированных фермах. Европейские кролики являются предками этой особи. Изначально селекционеры ставили перед собой задачу вывести мясную породу кроликов с хорошими шкурками. Эта порода – одна из наиболее известных мясных пород кроликов. 7-8 крольчат – средняя плодовитость крольчих. При разведении крольчихи могут приносить по 11-12 крольчат. Крольчата при рождении белые (сероватые), а к 3.5-4-месячному возрасту становятся похожи окраской на взрослых кроликов. За два месяца новорожденные кролики набирают два килограмма веса. Взрослые крольчихи весят 4.7-5.2кг, кролики – 4.5-5кг. Если скрестить белых новозеландских крольчих с калифорнийскими кроликами, то можно добиться отличных результатов разведения. У кролей этой породы опущенные лапки. Калифорнийских кроликов успешно разводят на решетчатом полу. Хвост у калифорнийских крольчих близко прилегает к телу, подбородок симметричный, голова посажена на короткой шее, широкая спина и плечи, цилиндрическое туловище средней длины.
Эту породу еще могут называть «калифорнийский белый кролик», потому что он чисто белого цвета. Однако кончики ушей, хвост и лапы могут быть окрашены в коричневый или в черный цвет. Обычно такой кролик весит не более 5кг. Если весит больше – страдает ожирением. Лапы у кролика толстые и короткие, глаза розовые, скелет крепкий и легкий. Длина ушей не превышает 10см. Опытные заводчики советуют начинающим кролиководам обратить внимание на разведение калифорнийских кроликов, потому что их нетрудно содержать.
Длина шерсти составляет приблизительно 3см, длина тела – 50см. Голова округлой формы, некрупная. Шерсть у кролика блестящая и густая. Калифорнийских кроликов можно купить и для развлечения, потому что у них миролюбивый нрав, веселый характер. При должном уходе калифорнийские кролики могут прожить до десяти лет. Однако из-за их крупного размера таких особей будет трудно содержать как декоративных. Для их содержания подойдут помещения с умеренной, постоянной температурой воздуха, с освещением. Кормить их можно сеном, травой, злаками, мукой, овощами, крупами.
Разновидности промышленных моделей
Клетки для промышленного разведения кроликов производятся разных видов. Конструкции бывают стационарные для внутренней и наружной установки, передвижные, а также с вольером. Так как кроликов можно содержать на открытом воздухе и в помещении, то и устройство жилья для них сильно различается:
- Для выращивания животных на улице используют односторонние клетки. Их ставят вдоль стены или сплошного без щелей ограждения. Задние и боковые стенки делают сплошные. Такой подход обусловлен обеспечением защиты кроликов от ветра и осадков.
- При содержании кролей внутри помещения используют двусторонние конструкции. Они полностью изготовлены из стальной сетки, что позволяет обеспечить эффективную вентиляцию.
Содержать более 100 голов в помещении сложно. Такое количество кролей обычно разводят на улице. Особенностью домика, предназначенного для уличного содержания кролей, являются неограниченные его размеры.
Обычно в кролиководстве применяют 6 видов клеток:
Каждую клетку можно изготовить для кроликов своими руками, а мы сейчас рассмотрим, какие бывают заводские конструкции.
Клеточное оборудование для кролиководства:
ПРОЕКТЫ ПО КРОЛИКОВОДСТВУ
|
Основой современной кролиководческой фермы являются промышленные клетки.
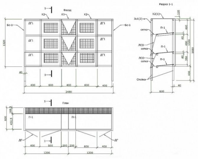
Наиболее рациональным решением при компоновки производственных помещений является применение универсальной двухуровневой клетки серии “Practica FR-231”. Клетка имеет ряд особенностей связанных с возможностью трансформации, что позволяет использовать её для всех производственных отделений вне зависимости от стадии цикла выращивания. Клетки имеет габаритные размеры (1980х2325х1560Н),мм.
Данная клетка позволяет максимально автоматизировать процессы кормления, поения, а также полностью удовлетворяет требованием основного производственного процесса по системе «пусто-занять».
Более подробно с описанием клетки можно ознакомиться на странице описания клетки.
Обзор промышленных моделей
Сейчас мы сделаем обзор промышленных клеток, используемых для разведения кроликов. Они подходят для фермерских хозяйств и частного сектора.
Клетка оснащена особой конструкцией кормушек. Кролики не могут из них выгрести корм, а перфорированное дно отсеивает примеси пыли из корма. Изготовлена клетка из стальной сетки с оцинкованным покрытием. Каждый модуль закреплен в каркасе, оснащенном стальными стойками. Если есть много свободного места, «Окрол» можно использовать в домашнем кролиководстве.
Практика FR-231
Модель «Практика FR-231» представлена двухъярусной конструкцией и предназначена для промышленного кролиководства. На нижнем уровне допускается установка двенадцати маточников. Дополнительно шесть гнезд можно расположить на верхнем ярусе. Это позволяет довести обще количество маточников до восемнадцати штук. Модель «Практика FR-231» переоборудуется под содержание молодняка на откорм. Клетка способна вместить до 90 голов.
Конструкция разработана по типу трансформера, что позволяет ее подстраивать под определенный тип поголовья: откорм, племя, обустройство маточников и т. д. Крышки всех модулей оснащены пружиной. Такой механизм облегчает выполнять обслуживание клеток. «Практика FR-231» подойдет для домашнего использования.
Промышленная модель Золотухина
Схема клетки довольно проста. Конструкция может состоять из одного или двух ярусов. Чаще всего такие клетки используются для содержания молодняка. В модели Золотухина не предусмотрено маточное отделение. Самке придется выводить потомство прямо на полу. Летом такой вариант допускается. Надо лишь вовремя положить сена, чтобы крольчиха сделала гнездо.
Кормушки крепятся с наружной стороны прямо на сетку. Их делают съемные или опрокидывающиеся для удобной чистки. Вода подается из бака по автопоилке. Модель Золотухина популярна при частном и промышленном разведении кроликов.
Промышленная модель Михайлова
На фото представлены чертежи с размерами клетки Михайлова. Продуманная конструкция сильно упрощает уход за кроликами. Корм в кормушки можно засыпать периодически 1–2 раза за 7 дней. Снизу под полом установлен конусообразный поддон. Конструкция позволяет автоматически отводить навоз в герметичную емкость. Жилье кроликов всегда остается сухое, чистое и практически не требует частого обслуживания человеком.
Разработка новых моделей Михайлова продолжается и сейчас. Производитель старается постоянно усовершенствовать свою конструкцию, прислушиваясь к требованию кролиководов.
Клетки от НИИ пушного звероводства и кролиководства
Представленные для кроликов чертежи клеток разработаны в НИИ. Они предназначены для содержания взрослых особей. Конструкция состоит из двух отсеков. Возле боковой стенки установлен маточник. Пол в этом участке сделан сплошной из доски. Кормовая секция отделена перегородкой с лазом 17х17 см. Для напольного покрытия применена стальная сетка. Размеры маточника:
- глубина – 55 см;
- длина – 40 см;
- высота со стороны входа – 50 см, а сзади – 35 см.
Читать так же: ЭМКАР крупного рогатого скота
С лицевой стороны установлены две сплошные дверцы и две створки из сетки. На последних – закреплены кормушки. Вся конструкция приподнята на 80 см от земли с помощью ножек.
На видео представлены промышленные клетки для кроликов:
Пошаговая инструкция
Первым делом необходимо соорудить каркас из бруса, состоящий из деревянных рам.
Из инструментов используются молоток и гвозди. Поскольку конструкция будет состоять из нескольких этажей, то между ярусами следует оставлять промежуток, куда в дальнейшем будет устанавливаться поддон для приема результатов жизнедеятельности животных.
При изготовлении каркаса следует следить за тем, чтобы он получился прочным и надежным. Каркас должен выдерживать вес пола, стенок, крыши, а также самих жителей этого сооружения, часто совершающих прыжки. Качественно изготовленный каркас будет залогом надежности всей конструкции.
При изготовлении каркаса следует проходить следующие этапы:
- сделать из брусков шесть прямоугольных рам;
- скрепить углы прямоугольников вертикальными брусками;
- посередине каждого яруса разместить дополнительные стойки для усиления надежности конструкции и размещения на них сенников;
- скрепить места соединений металлическими уголками с помощью гвоздей и саморезов.
Каркас должен исключать возможность расшатывания при активном поведении кроликов.
Следующий шаг – установка стенок и пола. Между передними и задними брусьями набить поперечные деревянные рейки. На них будет опираться настил, являющийся полом.
К нижнему прямоугольнику прикрепить ножки, сделанные из досок. Запас по высоте должен составлять приблизительно сорок сантиметров.
Задняя стена должна быть выполнена из сплошного материала, а передняя и две боковых стенки изготавливаются из мелкоячеистой сетки. Закрепить их можно изнутри с помощью строительного степлера.
Необходимо следить за тем, чтобы не оставалось торчащих металлических концов, о которые кролики могут пораниться. Сетка должна быть прочно закреплена, чтобы резвые зверьки не смогли выбраться из клетки.
Если пол предполагается делать из листов фанеры, то их следует устанавливать внахлест, прибивая мелкими гвоздями. У задней стенки надо оставить расстояние в 10-15 сантиметров, которое покрыть мелкоячеистой сеткой для стока отходов.
Существует два способа уборки навоза. В первом случае он будет попадать в специальные поддоны, устанавливаемые внизу каждого яруса.
Поддоны верхнего яруса устанавливаются на нижний, а поддон для нижнего этажа ставится на металлические уголки, закрепляемые внизу на каркасе. Края поддонов изготавливаются из бруса, а пол в них из фанеры.
Другой вариант – установка наклонных скатов из железа, по которым навоз будет скатываться вниз, откуда убрать его не составляет большого труда.
Отдельно происходит сборка дверей. Для изготовления двери вначале выполняется деревянный каркас, а потом на него набивается металлическая сетка.
Затем их устанавливают на заранее прикрученные петли и снабжают щеколдами. Более удобный вариант, когда они откидываются вниз, а не вбок.
Последним этапом является установка крыши. Для этого можно использовать такие материалы, как шифер, рубероид, поликарбонат, прочный линолеум или любой другой плотный и непромокаемый материал. Желательно использовать не отдельные куски, а один цельный на весь размер крыши таким способом, чтобы концы материала выходили за ее пределы, чтобы осадки не попадали внутрь клеток.
Крышу необходимо делать с небольшим наклоном, чтобы на ней не застаивалась дождевая вода. Это защитит всю конструкцию от гниения и увеличит срок эксплуатации.
Завершающим этапом является обустройство клеток изнутри и расстановка в них кормушек и поилок.
После этого в клетки можно заселять кроликов.















